
數顯金屬管浮子流量計
- 品*:JKM/凱銘儀表
- 型號:JKM-LZ
- 測量范圍:0.0025~60m3/h
- 精度等級:±1.5%
- 公稱通徑:DN15~DN100
- 適用介質:液體、氣體
- 工作壓力:1.6~4.0MPa
- 工作溫度:-80℃~200℃
- 供電方式:24VDC
- 訂貨號:SKJUQSEKR409
數顯金屬管浮子流量計概述
金屬管轉子流量計是工業自動化過程控制中常用的一種變面積流量測量儀表。它 具有體積小,檢測范圍大,使用方便等特點。它可用來測量液體,氣體以及蒸汽的流量。特別適宜低流速小流量的介質流量測量。金屬管轉子流量計有就地顯示 型和智能遠傳型,支持多種輸出協議,為用戶提供了非常廣闊的選擇空間;另外該儀表采用先進的16位微處理器及高質量工業化組件,保證了流量計在各種應用場所的優良性能。多年來,金屬管轉子流量計的各種優良性能和可靠性,以及較好的性能價格比,廣泛受到了石化,鋼鐵,冶金輕工,食品,制藥,水處理等行業的青睞。
數顯金屬管浮子流量計工作原理
金屬管轉子流量計的構造是在一根截面積自下而上逐漸擴大的垂直錐形金屬管內,裝有一個能夠旋轉自如的由金屬或其它材質制成的轉子(或稱浮子)。被測流體從金屬管底部進入,從頂部流出。當流體自下而上流過垂直錐形管時,轉子受到兩個力的作用:一是垂直向上的推動力,它等于流體流經轉了與錐形管間的環形截面所產生的壓力差;另一是垂直向下的凈重力,它等于轉子所受重力減去流體對轉子的浮力。當流量加大使壓力差大于轉子凈重力時,轉子就上升。當壓力差與轉子的凈重力相等時,轉子處于平衡狀態,即停留在一定位置上。在金屬管外表面上刻有讀數,根據轉子的停留位置,即可讀出被測流體的流量。轉子流量計是變截面定壓差流量計。作用在浮子上下游的壓力差為定值,而浮子與錐管間環形截面積隨流量而變。浮子在錐形管中的位置高低即反映流量的大小。
數顯金屬管浮子流量計部分特點
1、堅固的全金屬結構設計型浮子流量計
2、金屬轉子流量計采用獨立概念設計的測量管指示器
3、可選擇不銹鋼、哈氏合金、鈦材、PTFE材料測量系統
4、低壓力損失設計
5、短行程、小型結構設計、儀表總高度250
6、磁性耦合結構確保數據傳輸、信號更加穩定
7、保溫或伴熱夾套
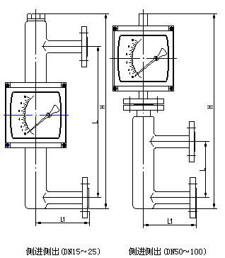
8、垂直安裝,介質下進上出
9、適用于小口徑和低流速介質流量測量
10、工作可靠,維護量小,壽命長
11、對于直管段要求不高
12、較寬的流量比10:1
13、雙行大液晶顯示,可選現場瞬時/累計流量顯示,可帶背光
14、單軸靈敏指示
15、非接觸磁耦合傳動
16、全金屬結構,適于高溫、高壓和強腐蝕性介質
17、可用于易燃、易爆危險場合
18、選二線制、電池、交流供電方式
19、多參數標定功能
20、帶有數據恢復,數據備份及掉電保護功能
數顯金屬管浮子流量計技術參數
1、測量范圍:水(20℃)1-200000 l,空氣(20℃,0.1013MPa)0.03-4000m3/h;參見流量表,特殊流量可訂制
2、量 程 比:標準型10:1
3、精 度:標準型1.0級;特殊型0.5級
4、壓力等級:標準型:DN15-DN50 4.0MPa DN80-DN200 1.6MPa;特殊型:DN15-DN50 25MPa DN80-DN200 16MPa;夾套的壓力等級為1.6MPa;特殊型在選型和訂貨前應與工廠協商
5、壓力損失:7kPa-70kPa
6、介質溫度:標準型:-80℃-+200℃:PTFE:0℃-85℃;高溫型:*高可達300℃
7、介質粘度:DN15:η<5mPa.s(F15.1-F15.3)/η<30mPa.s(F15.4-F1;DN25:η<250mPFa.s;DN50-DN150:η<300mPa.s
8、環境溫度:指針型-40℃-+120℃
9、連接形式:標準型:DIN2501標準法蘭;特殊型:由用戶指定的任意標準法蘭或螺紋
10、電纜接口:M20*1.5
11、供電電源:標準型:24VDC二線制4-20mA(10.8VDC-36VDC)
12、報警輸出:上限或下限瞬時流量報警,集電極開路輸出(*大100mA@30VDC內部阻抗100歐);繼電器輸出(觸點容量1A@30VDC或0.25A@250VAC或0.5A@125VA)
13、脈沖輸出:累積脈沖輸出,*小間隔50毫秒
14、液晶顯示:瞬時流量顯示數值范圍:0-50000;累計流量顯示數值范圍:0-99999999(可帶小數點)
15、防護等級:IP65
16、防爆標志:本安型iaⅡCT5;隔爆型dⅡBT6
數顯金屬管浮子流量計參考流量
數顯金屬管浮子流量計選型

數顯金屬管浮子流量計轉換器形式

數顯金屬管浮子流量計外形及安裝尺寸















